
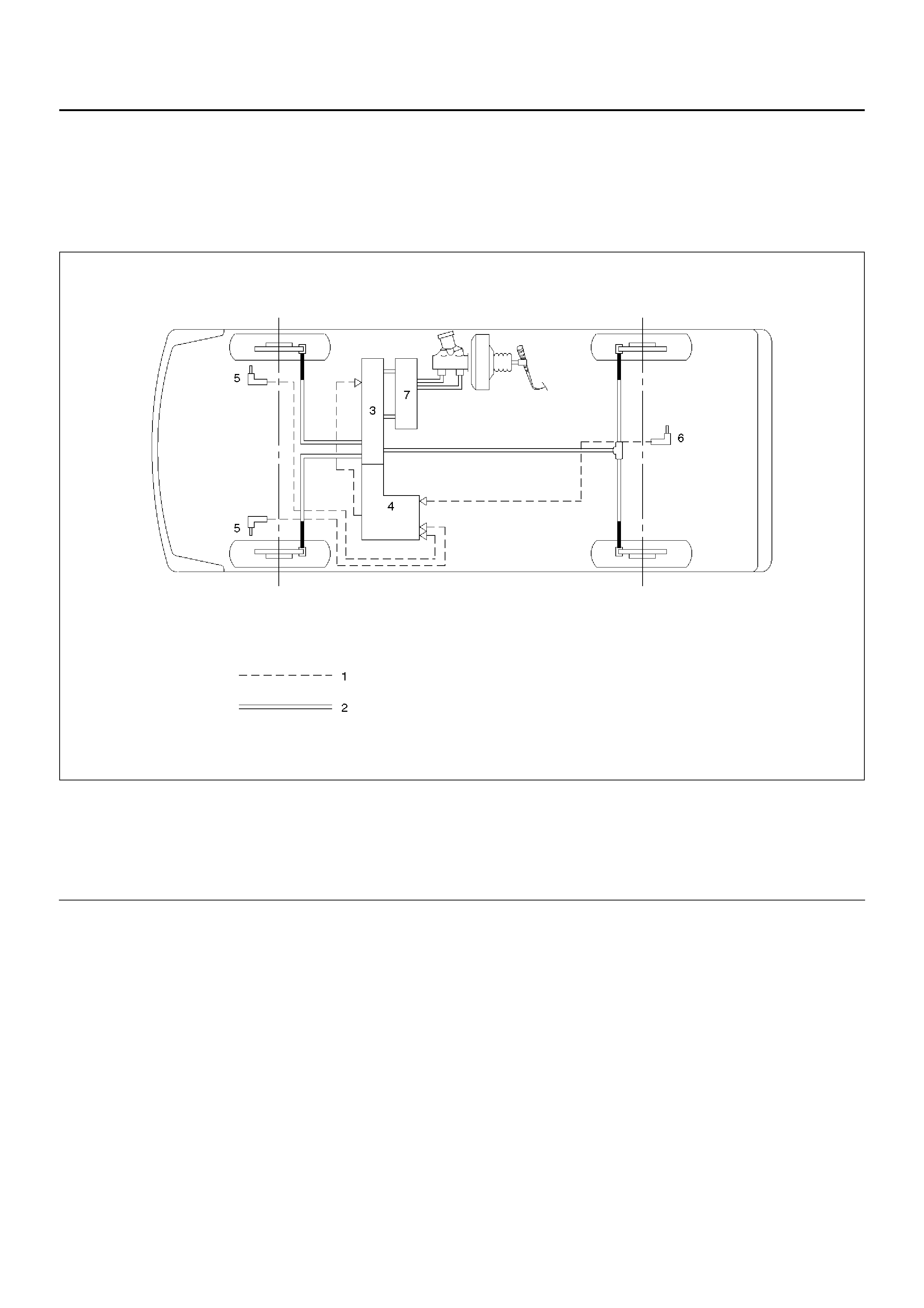
System Components
Electronic Hydraulic Control Unit (EHCU), three Wheel
Speed Sensors, Warning Light, and G-sensor.
Electronic Hydraulic Control Unit (EHCU)
The EHCU consists of ABS control circuits, fault
detector, and a fail-safe. It drives the hydraulic unit
according to the signal from each sensor, cancelling
ABS to return to normal braking when a malfunction has
occurred in the ABS.
The EHCU has a self-diagnosing function which can
indicate faulty circuits during diagnosis.
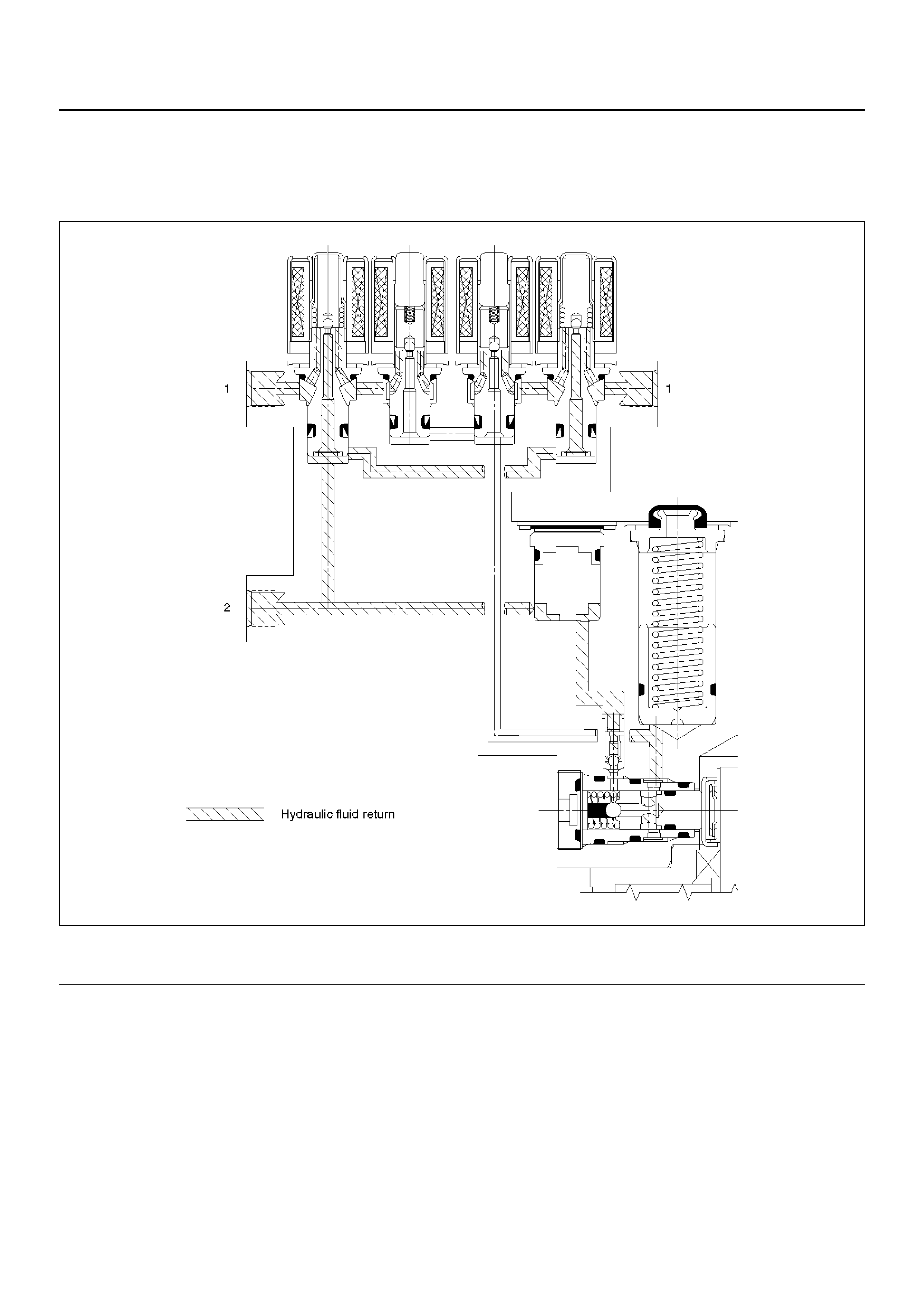
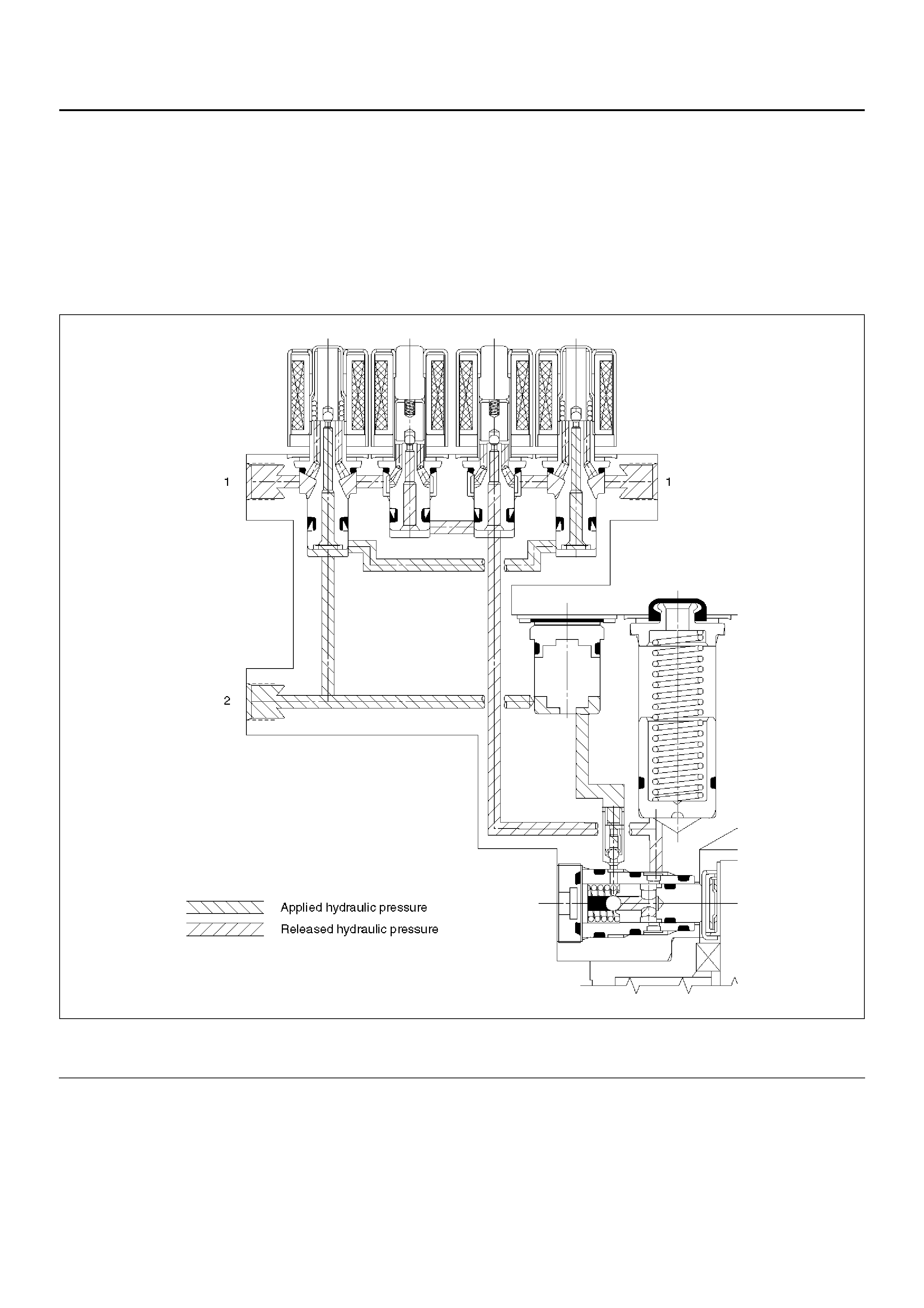
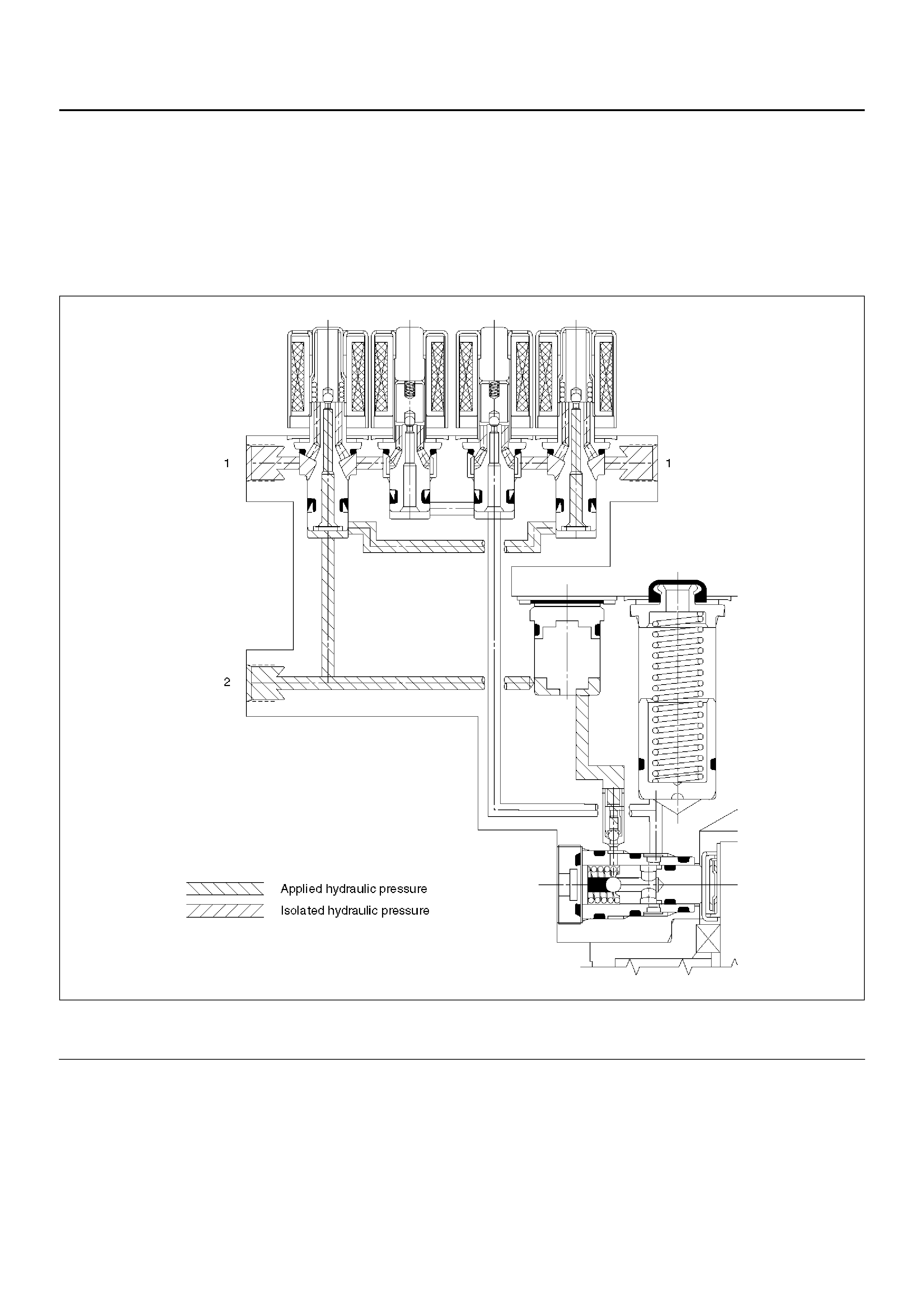
The EHCU is mounted on the engine compartment rear
right side. It consists of a Motor, Plunger Pump ,
Solenoid Valves.
Solenoid Valves: Reduces or holds the caliper fluid
pressure for each front disc brake or both rear disc
brakes according to the signal sent from the EHCU.
Reservoir: Temporarily holds the brake fluid that returns
from the front and rear disc brak e caliper so that
pressure of front disc brake caliper can be reduced
smoothly.
Plunger Pump: Feeds the brake fluid held in the
reservoir to the master cylinder.
Motor: Drives the pump according to the signal from
EHCU.
Check Valve: Controls the brake fluid flow.
ABS Warning Light
825RX048
Vehicles equipped with the Anti-lock Brake System hav e
an amber “ABS" warning light in the instrument panel.
The “ABS" warning light will illuminate if a malfunction
in the Anti-lock Brake System is detected by the
Electronic Hydraulic Control Unit (EHCU). In case of
an electronic malfunction, the EHCU will turn “ON" the
“ABS" warning light and disable the Anti-lock braking
function.
The “ABS" light will turn “ON" f or approximately three
seconds after the ignition switch is to the “ON" position.
If the “ABS" light stays “ON" after the ignition switch is
the “ON" position, or comes “ON" and sta ys “ON" while
driving, the Anti-lock Brake System should be inspected
for a malfunction according to the diagnosis procedure.
Wheel Speed Sensor
It consists of a sensor and a rotor. The sensor is
attached to the knuckle on the front wheels and to the
rear axle case on the rear differential.
The rotor is press-fit in the axle shaft.
The flux generated from electrodes magnetized by a
magnet in the sensor varies due to rotation of the rotor ,
and the electromagnetic induction generates alternating
voltage in the coil. This voltage draws a “sine curve"
with the frequency proportional to rotor speed and it
allows detection of wheel speed.
G-Sensor
The G-sensor installed inside the EHCU detects the
vehicle deceleration speed and sends a signal to the
EHCU. In 4WD operation, all four wheels may be
decelerated in almost the same phase, since all wheels
are connected mechanically.
This tendency is noticeable particularly on roads with
low friction coefficient, and the ABS control is adversely
affected.
The G-sensor judges whether the friction coefficient of
road surface is low or high, and changes the EHCU's
operating system to ensure ABS control.
Normal and Anti-lock Braking
Under normal driving conditions, the Anti-lock Brake
System functions the same as a standard power
assisted brake system. However, with the detection of
wheel lock-up, a slight bump or kick-back will be felt in
the brake pedal. This pedal “bump" will be followed b y a
series of short pedal pulsations which occurs in rapid
succession. The brake pedal pulsation will continue
until there is no longer a need for the anti-lock function
or until the vehicle is stopped. A slight ticking or popping
noise may be heard during brake applications when the
Anti-lock features is being used.
When the Anti-lock feature is being used, the brake
pedal may rise even as the brakes are being applied.
This is also normal. Maintaining a constant f orce on the
pedal will provide the shortest stopping distance.
Brake Pedal Travel
Vehicles equipped with the Anti-lock Brake System may
be stopped by applying normal force to the brake pedal.
Although there is no need to push the pedal bey ond the
point where it stops or holds the vehicle, by applying
more force the pedal will continue to travel toward the
floor.
This extra brake pedal travel is normal.