
066RS036
IC Regulator Assembly
Connect a variable resistor, two 12V batteries, a fixed
resistor, and a voltmeter to the IC regulator as shown in
illustration.
a. Measuring equipment specifications
1. Fixed resistor (R1) : 10 Ohms /3W
2. Variable resistor (Rv) : 0-300 Ohms/12W
3. Batteries (BAT1, BAT2) : 12V (2 Batteries)
4. DC voltmeter : 0-50V/0.5 steps (4 Check points)
b. Measuring procedure
1. Measure the voltage “V1” across the first battery
(BAT1). If the reading is between 10 and 13 volts,
the battery is normal.
2. Measure the voltage “V3” across both the batteries
(BAT1, BAT2). If the reading is between 20 and 26
bolts, the batteries are normal.
3. Gradually increase the resistance of the variable
resistor from zero. Measure the voltage “V2” (the
voltage across the F and E terminals).
Check to see that the voltage across “V1” changes at
this time. If there is no change, the voltage regulator
is faulty and must be replaced.
4. Measure the voltage at “V4” (the voltage across the
variable resistor center tap and terminal E with the
variable resistor resistance held constant). The
measure voltage should be within the specified
(14.4±0.3 volts) limits. If it is not, the regulator must
be replaced.
066RX003
Reassembly
To reassemble, follow the disassembly steps in the
reverse order, noting the following points:
NOTE:
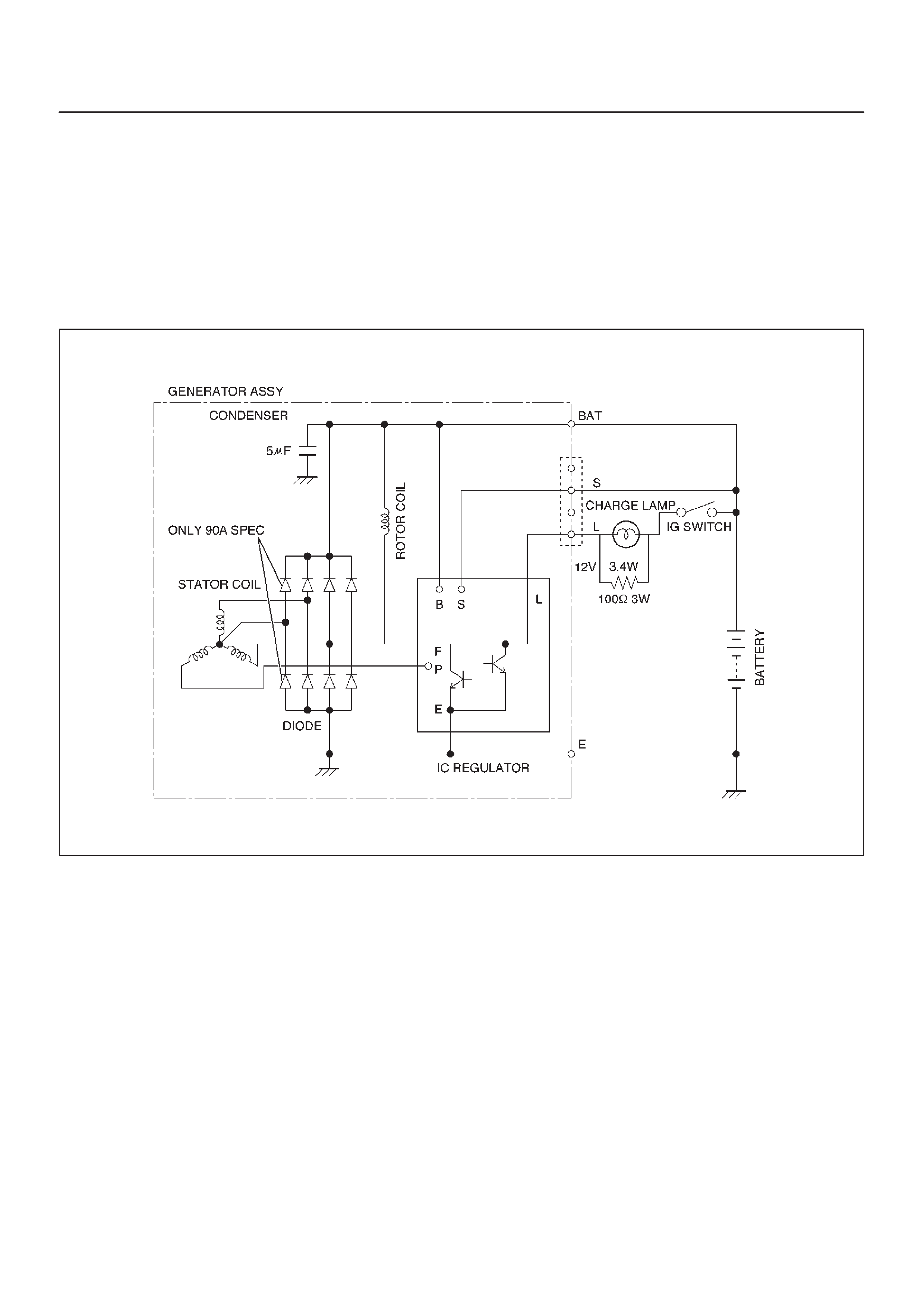
DNever make battery connections with polarities
reversed, or battery will be shorted via the diodes.
This will cause damage to the diodes.
DDo not connect generator B terminal to ground; it is
connected directly to the battery.
This cable will burn if it is connected to ground.
DMake sure to disconnect the positive (+) terminal of
the battery when quick-charging battery .
Diodes may be damaged due to abnormal pulse
voltage generated bye the quick charger.
DWhen reassembling the front section to rear section,
insert a stiff wire into hole in the rear face of the rear
cover from the outboard side to support the brush in
raised position, then insert the front section to which
rotor is assembled.
DReassemble parts carefully to be sure they fit into
their original position, paying attention to the
insulated portions.
DWipe insulating tubes, washers and plates clean and
install them in position carefully to avoid getting oil or
grease on them.