
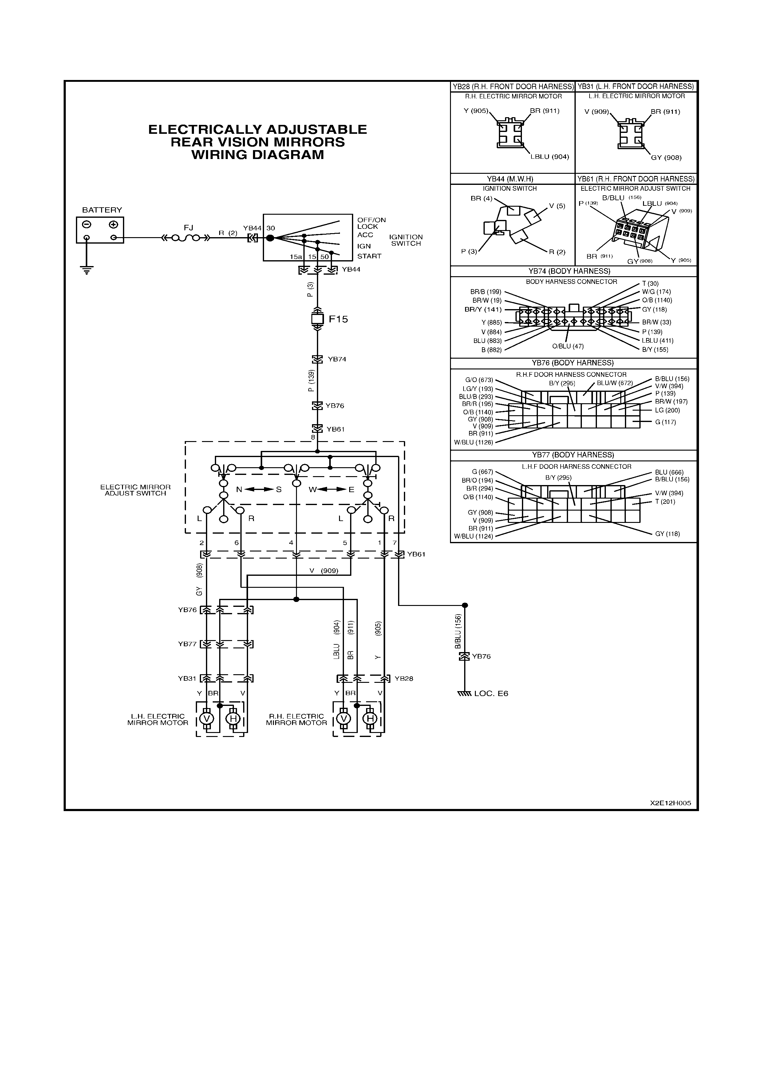
3.1 ELECTRIC MIRROR/S INOPERATIVE
STEP ACTION VALUE YES NO
1. • Are both electric rear view mirrors inoperative? Go to Step 2. Go to Step 3.
2. • Is fuse F15 OK (located in fuse panel)? Go to step 3. Replace blown
fuse, check
wiring for cause
of fuse blowing.
Re-check
system.
3. • Remove RH front door inner trim panel, refer
to Section 1A5 FRONT AND REAR
DOOR.ASSEMBLIES, in the VT Series I
Service Information.
• Reconnect mirror control switch.
• Turn ignition ON.
• Using a test light at the switch side of
connector YB61, check for power at terminal
8.
• Does test light illuminate ?
Go to Step 4. Check and
repair open
circuit in circuit
139 (Pink wire)
from fuse F15
to control
switch.
Re-check
system.
4. • Using an ohmmeter, check circuit 156 for
continuity between connector YB61 (Black
wire) and earth connection (location E6).
• Is wiring OK ?
Go to Step 5. Check and
repair open
circuit in earth
circuit 156
(Black wire).
Re-check
system
5. • At connector YB61, check for continuity in the
following circuits:
Circuit 911 (Brown wire) to circuit 909 (Violet
wire)
(LH mirror horizontal motor).
Circuit 911 (Brown wire) to circuit 908 (Grey
wire).
(LH mirror vertical motor).
Circuit 911 (Brown wire) to circuit 905
(Yellow wire)
(RH mirror horizontal motor).
Circuit 911 (Brown wire) to circuit 904
(L/Blu e wire)
(RH mirror vertical motor).
• Is wiring OK ?
Go to Step 6. Check and
repair open
circuit.
Re-check
system.
6. • Check mirror control switch, refer to 2.1
MIRROR CONTROL SWITCH, in this Section.
• Is mirror control switch OK ?
System OK. Replace mirror
control switch.
Re-check
system.