
4. The VIN in the telematics module must match the actual vehicle VIN. The correct VIN is critical for proper
telematics system operation.
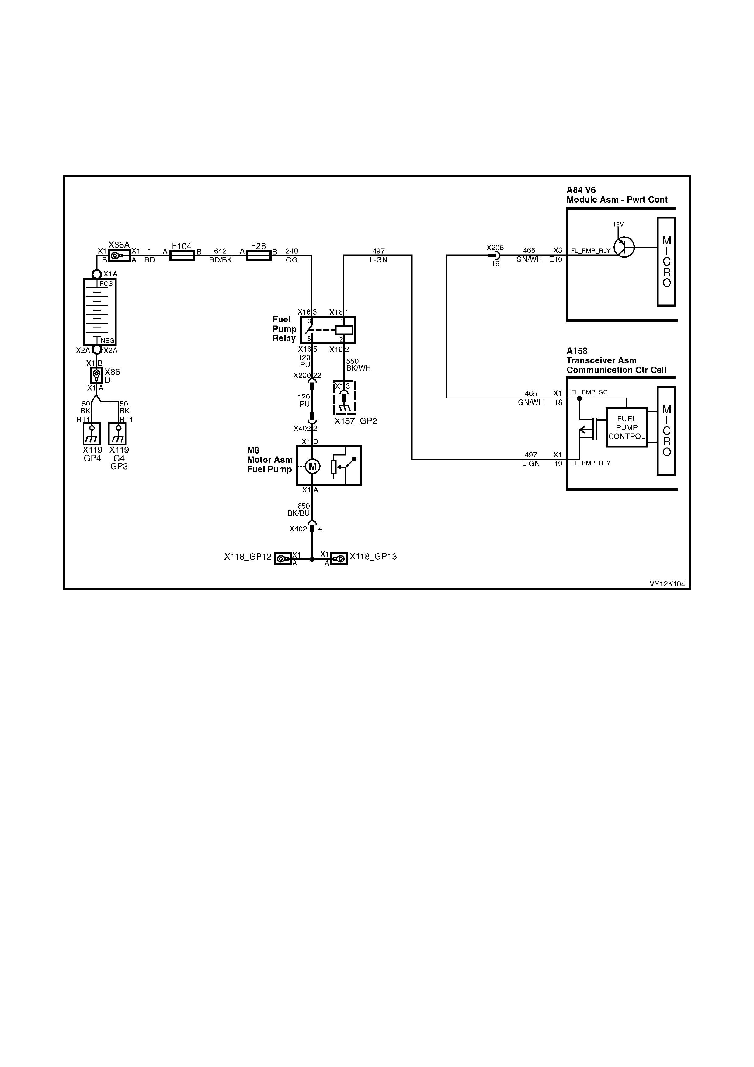
5. If the engine starts and runs then the fuel pump relay drive circuit is OK.
6. In this you are checking if there are any current DTCs. If there are current DTCs, refer to the applicable
diagnostic chart.
7. This test determines if the telematics module is in pre delivery mode. In pre delivery mode the telematics
module is turned off. If the pre delivery mode is enabled it should be disabled and the On-Board Diagnostic
System Check should be performed again.
8. In this tes t you should ref er to the telematics data lis t nominal va lues. If the value s in the TECH 2 Data List do
not meet the nominal values listed, refer to the applicable diagnostic chart.
9. In this test step all of the TECH 2 Miscellaneous Tests should be conducted and all tests should pass
successfully, if any test fails you should refer to the applicable diagnostic chart.
10. T he vehicle m ust be positioned where the GSM s ignal stren gth is great er than –90 dbm and the GPS data list
parameter “Time of Last Known GPS Fix” is updating. You can then begin the Holden Assist Telematics
System Test. You must refer to the Holden Assist Telematics System Test in this Section.
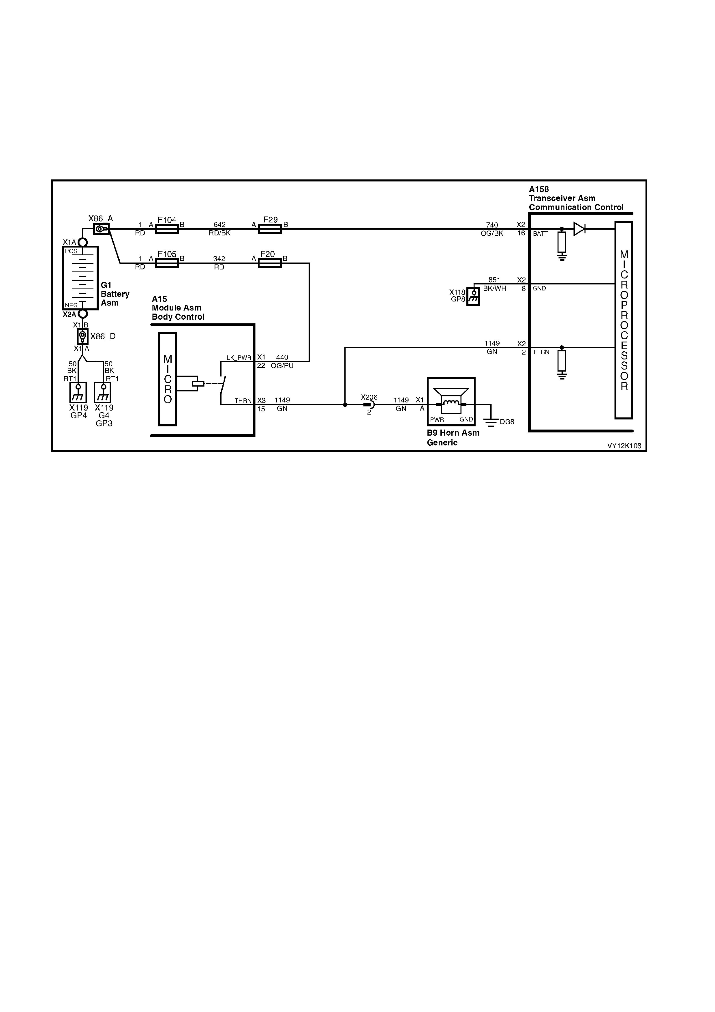
11. This test step confirms that the connector terminal retention is OK, Terminal retention should always be
checked before any component is replaced.
12. The telem atics s ystem is operating as design ed and h as passed t he On- Board Di agnostic S ystem Check. You
should discuss the system complaint with the driver (System Subscriber) of the vehicle to ensure that they
understand the correct operation of the system, have them demonstrate the problem.
STEP ACTION YES NO
1. 1. Turn ignition on, engine off.
Are either the Red or Green or both (Orange) the Status
indicator LEDs in the interior rear view mirror
illuminated?
Go to Step 2. Refer Status Indicator
LEDs Do Not Illuminate
in this Section.
2. 1. Turn ignition off, install TECH 2 to DLC, turn ignition
on and turn on TECH 2.
Does TECH 2 power up and display the title display
screen?
Go to Step 3. Refer TECH 2
Diagnosis, Section 0C
TECH 2 in this Service
Information.
3. 1. With TECH 2 still connected and ignition on, press
the ENTER key, then select Diagnostics / (3) 2003 /
VY Commodore / F4: Body / Telematics Module and
then follow the screen instructions.
Does TECH 2 display telematics system identification
information?
Go to Step 4. Go to No Serial Data
Chart in this Section.
4. Did the VIN displayed in step 3 match the actual VIN of
the vehicle? Go to Step 5. Go to Step 11.
5. Does the engine start and run? Go to Step 6. Go to Fuel Pump Relay
Drive Circuit Chart in
this Section.
6. 1. From the Telematics Application Menu,
select F0: Diagnostic Trouble / F0: Read DTC
Information.
Are there any current DTCs?
Go to the applicable DTC
Diagnostic Chart in this
Section.
Go to Step 7.
7. 1. From the Telematics Application Menu,
Select F1: Data Display / F0: Inputs and Outputs.
Scroll to “Operating Mode”.
Does TECH 2 display “Pre Delivery”?
Disable Pre Delivery Mode.
Refer F5: Program /
F1: Operating Mode
in this Section.
Go to Step 8.
8. 1. From the Telematics Application Menu
Select / F1: Data Display
(Refer 4.3 TECH 2 TEST MODES, F1: Data Display
in this Section).
Do the Telematics Data List pa rameters match the
Nominal Values?
Go to Step 9. Refer to the appropriate
Data Display Diagnost ic
Chart in this Section.
9. 1. From the TECH 2 Telematics application menu
Select / F2: Miscellaneous Tests
(Refer 4.3 TECH 2 TEST MODES /
F3: Miscellaneous Tests in this Section).
2. Perform all the Miscellaneous Tests.
Were all the Miscellaneous Tests successful?
Go to Step 10. Refer to the Applicable
Miscellaneous Test
Failure Diagnostic Chart
in this Section.