
Powertrain Management - V6 Engine Page 6C1–1
28–FEB–2003 Page 6C1–1
Section 6C1
Powertrain Management - V6 Engine
ATTENTION
Before performing any Service Operation or other procedure described in this Section, refer to Section 00
CAUTIONS AND NOTES for correct workshop practices with regard to safety and/or property damage.
1 General Information............................................................................................................................... 3
2 Diagnosis................................................................................................................................................ 4
3 Diagnostic Tables.................................................................................................................................. 5
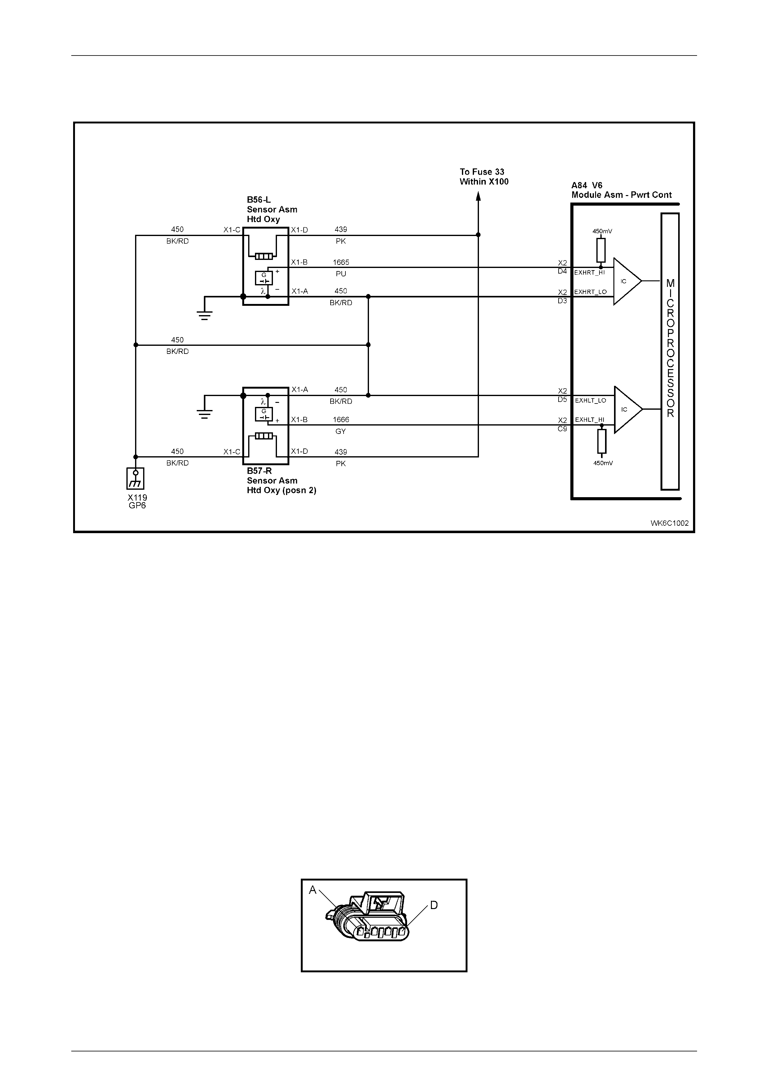
3.1 PCM Wiring Diagrams............................................................................................................................................5
3.2 Table A-6.3 V6 PCM – Heated Oxygen Sensor Check.........................................................................................7
Circuit Description.................................................................................................................................................7
Test Description.....................................................................................................................................................7
Table A-6.3 V6 PCM – Heated Oxygen Sensor Check.......................................................................................8
3.3 Table A-6.3A V6 PCM Engine – Heated Oxygen Sensor Heater Check .............................................................9
Circuit Description.................................................................................................................................................9
Test Description:....................................................................................................................................................9
Table A-6.3A V6 PCM Engine – Heated Oxygen Sensor Heater Check ..........................................................10
3.4 DTC P0131 V6 PCM - Right-hand Heated Oxygen Sensor (O2S) Signal Voltage Low....................................11
Circuit Description...............................................................................................................................................11
Conditions for Running the DTC.........................................................................................................................11
Conditions for Setting the DTC...........................................................................................................................11
Action Taken When the DTC Sets.......................................................................................................................11
Conditions for Clearing the MIL/DTC..................................................................................................................11
Diagnostic Aids....................................................................................................................................................11
Test Description...................................................................................................................................................12
DTC P0131 V6 PCM - Right-hand Heated Oxygen Sensor (02S) Signal Voltage Low.....................................13
3.5 DTC P0132 V6 PCM - Right-hand Heated Oxygen Sensor (O2S) Signal Voltage High...................................14
Circuit Description...............................................................................................................................................14
Conditions for Running the DTC.........................................................................................................................14
Conditions for Setting the DTC...........................................................................................................................14
Action Taken When the DTC Sets.......................................................................................................................14
Conditions for Clearing the MIL/DTC..................................................................................................................14
Diagnostic Aids....................................................................................................................................................14
Test Description...................................................................................................................................................15
DTC P0132 V6 PCM - Right-hand Heated Oxygen Sensor (O2S) Signal Voltage High...................................16
3.6 DTC P0134 V6 PCM - No Right-hand Heated Oxygen Sensor (O2S) Signal....................................................18
Circuit Description...............................................................................................................................................18
Conditions for Running the DTC.........................................................................................................................18
Conditions for Setting the DTC...........................................................................................................................18
Action Taken When the DTC Sets.......................................................................................................................18
Conditions for Clearing the MIL/DTC..................................................................................................................18
Diagnostic Aids....................................................................................................................................................19
Test Description...................................................................................................................................................19
DTC P0134 V6 PCM - No Right-hand Heated Oxygen Sensor (O2S) Signal...................................................20
3.7 DTC P0151 V6 PCM - Left-hand Heated Oxygen Sensor (O2S) Signal Voltage Low ......................................22
Circuit Description...............................................................................................................................................22
Conditions for Running the DTC.........................................................................................................................22
Conditions for Setting the DTC...........................................................................................................................22
Action Taken When the DTC Sets.......................................................................................................................22